Lokalplanens indhold
Lokalplanen muliggør ombygning af de eksisterende bygninger til boliger. Der udlægges ikke med lokalplanen byggefelter til opførelse af nybyggeri, og det eksisterende grønne haveareal vil således fremadrettet også bestå som grønt haveareal for de kommende boliger. Lokalplanen er ikke en bevarende lokalplan for bevaringsværdig bebyggelse, men de udvendige arkitektoniske kvaliteter, navnlig ved den eksisterende hovedbygning, søges med lokalplanbestemmelserne fastholdt. En mindre del af det nuværende grønne haveareal disponeres med parkering. Med lokalplanen fastsættes krav om etablering af min. 1 p-plads pr. bolig. Vejadgang til arealet vil fortsat primært ske via adgang fra Tølløsevej og sekundært ved stiadgang fra Hjortholmvej.
Illustrationsplan efter indretning af boliger i eksisterende bygninger med nyt p-areal
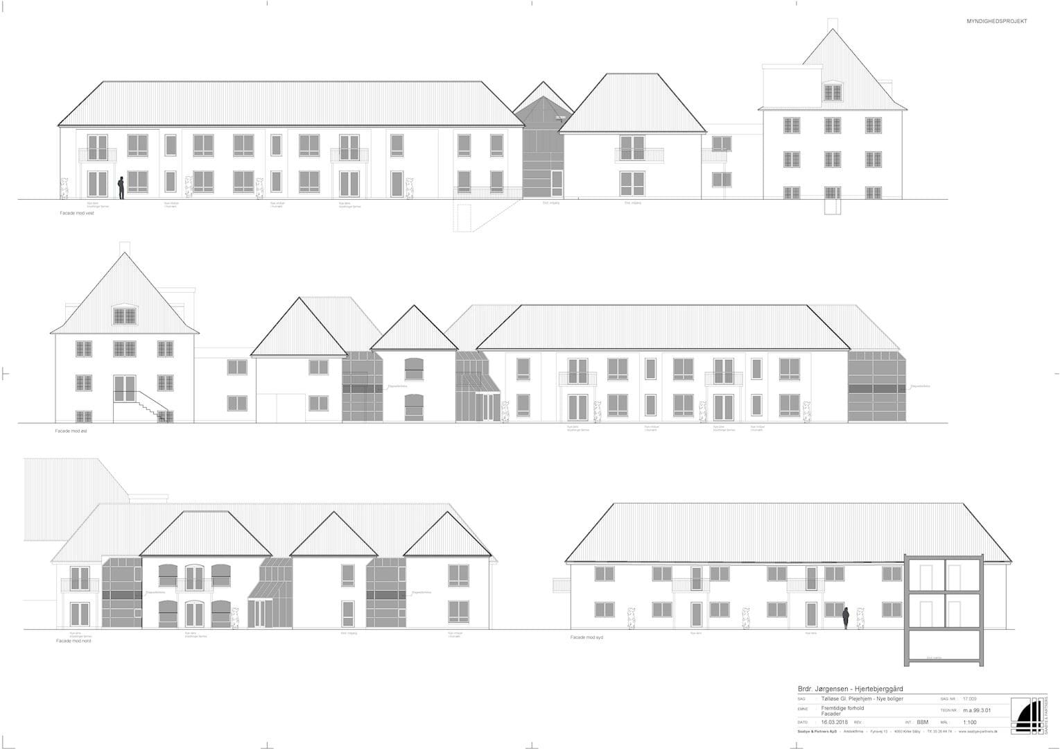
Facadetegninger ved ombygning til boligformål


