Borgerinddragelse
Inden udarbejdelse af nærværende planforslag har der været afholdt inddragende interessentmøder med sejlsportsforeningerne, Kulturbiografen, beboerrepræsentanter og erhvervsvirksomheder inden for området. Derudover har været afholdt offentligt idémøde forud for udarbejdelsen af nærværende planforslag.
Planforslaget indeholder en imødekommelse af ønsker fra sejlsportsforeningerne om disponering af bådepladser, udlæg af nyt byggefelt for udvidelse af kajakklubbens bygninger og friholdelse af arealet mod Finsings Plads for høj bebyggelse.
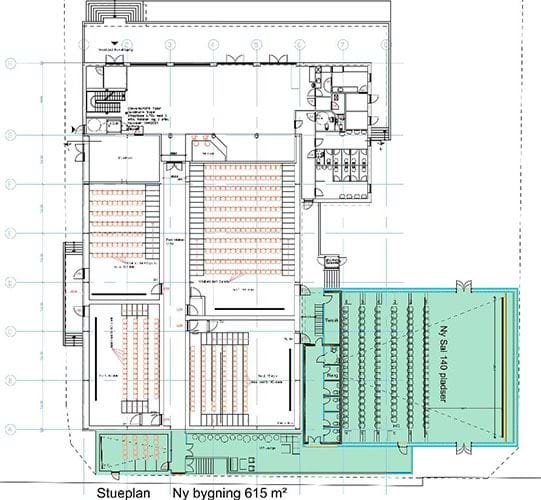
Mulighed for at realisere tilbygning til Kulturbiografen og forslag om flytning af biografens parkering fra Filmtorvet er ligeledes sket i dialog med interessenten.
Muligheden for indplacering af et nyt teaterbyggeri udspringer af drøftelser i Det Politiske Havneudvalg efter projektforslag fra teatrene om realisering af nyt teater i havneområdet. Teatrenes forslag var placeret på Blegstræde Hage og ikke ved Filmtorvet, men referencer omkring størrelser og funktioner, bl.a. ved henvisning til Vendsyssel Teater, kan tilnærmelsesvis imødekommes ved den i planforslaget givne placeringsmulighed. Foyer og hovedindgang kan gives en placering direkte ud til Filmtorvet i den visuelle akse fra Havnepromenaden, og med udsigt udover hele havnen, mens nye p-pladser kan tilvejebringes umiddelbart ved siden af byggefeltet.
Tegningsmateriale af ny tilbygning til Kulturbiografen, Peter Haugaard, Lone Backs Arkitekter
Referencefotos af Vendsyssel Teater i Hjørring, Vendsyssel Teaters hjemmeside
Behandling af høringssvar
Skema med indkomne høringssvar og behandling heraf kan ses her



