Oplysende kortbilag
Kortbilagene herunder hører til lokalplanens redegørelse og oplyser om de eksisterende forhold samt de mulige, fremtidige forhold i planområdet.
Kortbilag 1: luftfoto
Kortbilag 2: bindingskort
Kortbilag 3: illustrationsplan
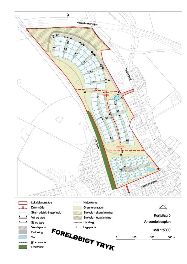
Juridisk bindende kortbilag
Kortbilagene herunder hører til lokalplanens bestemmelser og er juridisk bindende i forhold til de fremtidige forhold i planområdet.






