Lokalplanområdet
Lokalplanområdet omfatter i sin helhed ca. 20 ha. Området afgrænses mod vest af eksisterende bebyggelse ud til Roskildevej, mod nord af Højen og de grønne arealer omkring kapellet og mod syd af vejen Holbæk Have. Mod øst grænser området op til seminariet og en ny boligbebyggelse, der er under opførelse.
Holbæk Have ligger i et område med bolig- og institutionsbebyggelse i forskellige skala. Mod syd primært etageboligbebyggelse i større skala, og mod vest og nord rækkehuse, enfamiliehuse og gårdhavehuse. Mod øst placerer sig det markante Holbæk Seminarium i landskabet.
Lokalplanområdet har tidligere været anvendt til idrætsformål, fodboldbaner, stadion og tilhørende servicefunktioner.
Luftfoto af området

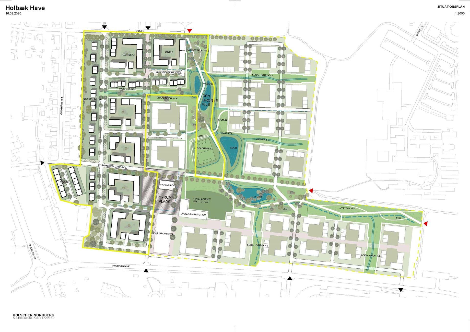
Dispositionsplan med angivelse af projektlokalplanområde vist med gul signatur


