Lokalplanens indhold
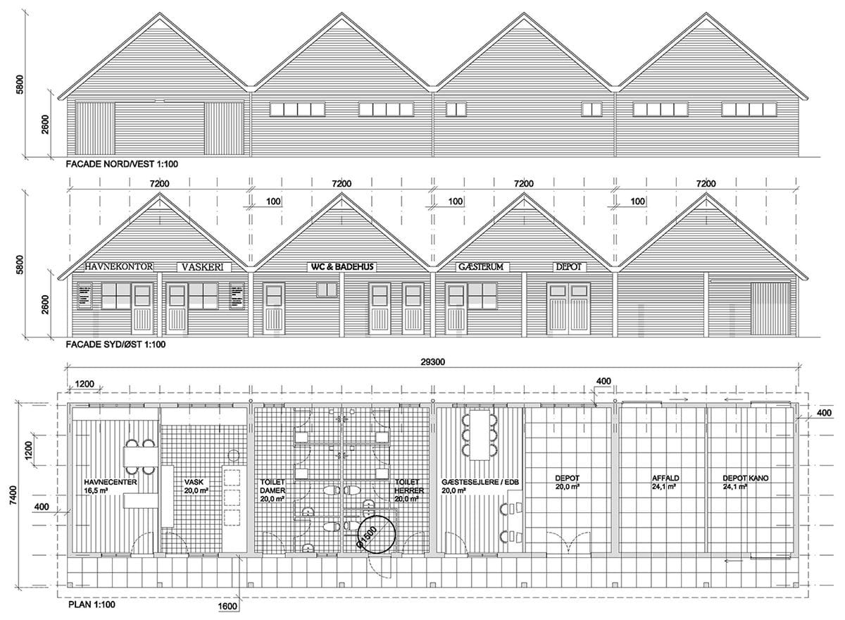
Lokalplanen udlægger et byggefelt på omtrent 36 x 10 meter parallelt med Falck-stationen og med en byggelinje, der følger den nordvestvendte facade på Orø Bådelaugs klubhus. Inden for byggefeltet kan der opføres et byggeri med en maksimal højde på 8,5 meter i miljøklasse 1-2. Byggeriet tager udgangspunkt i et konkret projekt, der inddeler byggeriet i fire ensartede fag (ca. 7 x 7 m) med sadeltag og med gavle, der henvender sig mod vejen fra færgelejet til Bybjerg og mod Falck-stationen. Bygningen skal anvendes til bl.a. havnekontor, vaskeri, WC og badehus, kiosk, gæsterum, depoter samt affaldshåndtering. Lokalplanen muliggør opførelse af et bygningsfag mere, end projektet lægger op til for at sikre en fremtidig udvidelsesmulighed.
Lokalplanen suppleres af et kommuneplantillæg, der fastholder området i landzone og som sikrer en minimumsafstand mellem boliger og erhverv på 50 meter. Lokalplanen har ikke bonusvirkning*. Derfor erstatter lokalplanen ikke fremtidige landzonetilladelser, der derfor fortsat vil være nødvendige for fremtidigt byggeri. Vilkår i fremtidige landzonetilladelser fastlægges med udgangspunkt i denne lokalplans bestemmelser.
Der fastlægges også bestemmelser om lokalplanområdets ubebyggede områder såsom veje, parkeringspladser og friarealer.
Lokalplanen muliggør mindre fravigelser fra det konkrete projektforslag.
*En lokalplan med bonusvirkning skal indeholde konkrete og detaljerede bestemmelser om byggeriets udformning, materialer, taghældning, farver, vinduestyper og lignende.
Eksempel på hvordan byggeriet kan komme til at se ud. Tegningen er en del af det projektforslag, der har ligget til grund for udarbejdelsen af denne lokalplan, og er produceret af Byens Tegnestue ApS, København.

