Oplysende kortbilag

Kortbilagene herunder hører til lokalplanens redegørelse og oplyser om de eksisterende forhold samt de mulige, fremtidige forhold i planområdet.

Kortbilag 1

Kortbilag 1 - Luftfoto

kort1.pdf (341.6 KB)

Kortbilag 2

Kortbilag 2 - Bindingskort

kort2.pdf (226 KB)

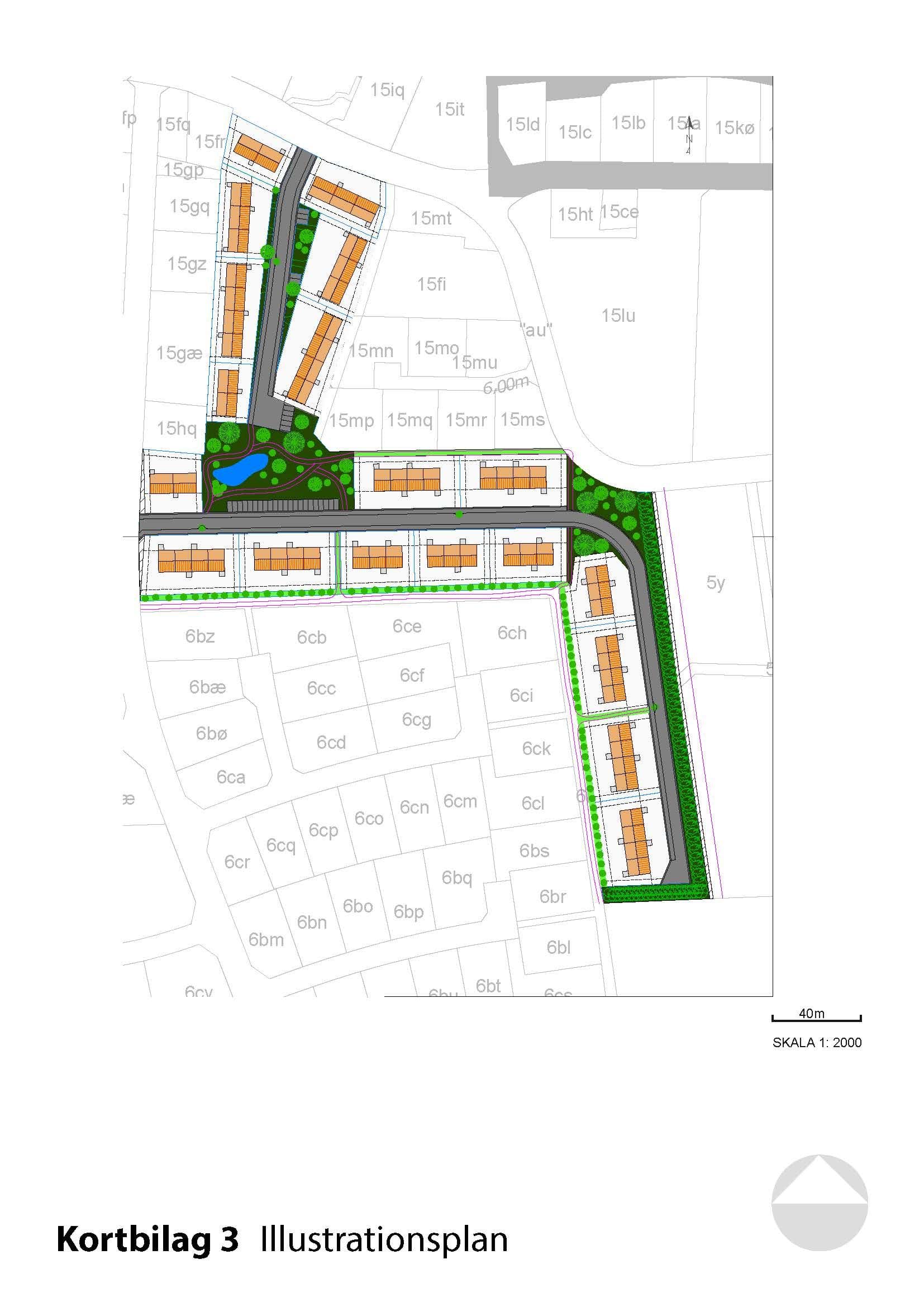
Kortbilag 3

Kortbilag 3 - Illustrationsplan

kort3b.pdf (365 KB)

Juridisk bindende kortbilag

Kortbilagene herunder hører til lokalplanens bestemmelser og er juridisk bindende i forhold til de fremtidige forhold i planområdet.

Kortbilag 4


Kortbilag 4 - Område- og matrikelkort

kort4.pdf (105.2 KB)

Kortbilag 5

Kortbilag 5 - Anvendelsesplan

kort5c.pdf (147.7 KB)