Kortbilag og bilag
Kortbilagene og bilagene herunder hører til lokalplanens redegørelse og oplyser om de eksisterende forhold samt de mulige, fremtidige forhold i planområdet.
KB 1: Luftfoto
KB 2: Bindningskort
KB 3: Illustrationskort
KB 4: Område-og matrikelkort
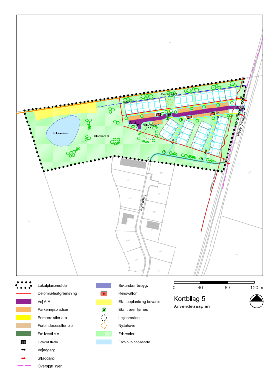
KB 5: Anvendelsesplan
KB 5A: Byggefelter
B 6 Servitutredegørelse.
B 7: Servitutrids.
B 8: Farvekort









