Oplysende kortbilag
Kortbilagene herunder hører til lokalplanens redegørelse og oplyser om de eksisterende forhold samt de mulige, fremtidige forhold i planområdet.
Kortbilag 1
Kortbilag 2
Kortbilag 3
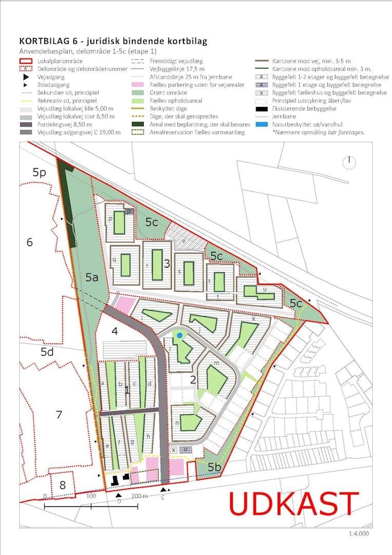
Juridisk bindende kortbilag
Kortbilagene herunder hører til lokalplanens bestemmelser og er juridisk bindende i forhold til de fremtidige forhold i planområdet.
Kortbilag 5
Kortbilag 6
Kortbilag 7
Kortbilag 8

Kortbilag 9b








