Lokalplanens indhold
Lokalplanen udlægger området til offentlige formål i form af et plejecenter med tilhørende fællesfaciliteter og friarealer. Der etableres ca. 75 plejeboliger inden for området.
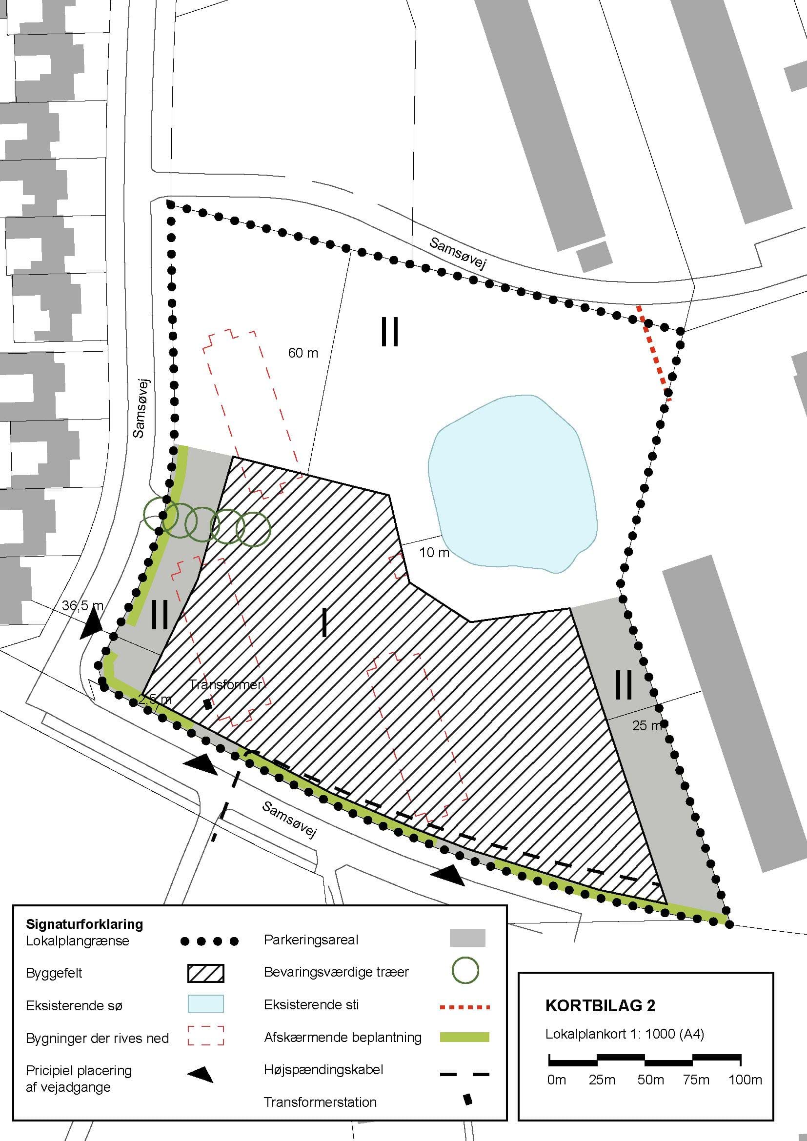
2 delområder
Lokalplanen er inddelt i 2 delområder. I delområde I kan der etableres byggeri i op til 3 etager foruden eventuel kælder i max 11 meters højde målt over nuværende terræn plus 1 meter til tekniske anlæg. Delområde II udlægges til rekreativt grønt friareal samt parkering for områdets beboere. Dele af det grønne areal vil være tilgængeligt for offentligheden i form af en legeplads på områdets nordvestlige del. Der vil også være private haver, som er forbeholdt områdets beboere.
Bebyggelsen
Samlet set giver lokalplanen mulighed for at opføre et bruttoetageareal på 8.947,8 m2, svarende til en bebyggelsesprocent på 45. I dag rummer området et bruttoetageareal på ca. 5.274 m2, svarende til en bebyggelsesprocent på ca. 27. Det nye byggeri er skitseret til at blive ca. 1,2 m højere end det eksisterende kollegiebyggeri, men med det samme antal etager. Intentionen med bygningsformen er, at etagehøjden på bebyggelsen kan variere i 1, 2 og 3 etager, så bebyggelsen tilpasser sig omgivelserne, men der gives mulighed for at bebyggelse kan opføres i op til 3 fulde etager. Bygningen er skitseret, så den består af to cirkelformerede bygningskroppe med to indre gårdrum. Dele af stueetagen er åben dvs. den står på søjler, og giver derfor mulighed for fortsatte inde-udearealer på stueplanen og for cykelparkering.
Bebyggelsen disponeres med mulighed for at benytte stueetagens tagflade samt 1 og 2. sals tagflade til tagterrasser. Disse må ikke overdækkes.
Byggefeltet er afgrænset, så der holdes min 36,5 meters afstand til rækkehusene mod vest og 25 meters afstand til Bjergmarken mod øst. I dag er der henholdsvis ca. 33 meter og 66 meter til disse to bebyggelser. Mod syd holdes der 2,5 meters afstand til matrikelskel, og mod nord er der 60 meter til matrikelskel. Byggefeltet er også afgrænset, så der holdes en mindsteafstand fra bebyggelsen til søens kant på 10 meter. Byggefeltet er placeret, så der er mulighed for et stort sammenhængende grønt friareal nær bebyggelsen.
Tilgængelighed
Bygningen og omgivelserne skal udformes, så de er anvendelige for ældre, kørestolsbrugere og demente, hvor de har fri bevægelighed og nemt kan orientere sig. Byggeriet og omgivelser skal indrettes, så de ansatte kan udføre deres arbejde bedst muligt, dvs. at servicefunktioner skal placeres hensigtsmæssigt i forhold til hinanden. Området skal udformes, så der er overensstemmelse med de gældende bæredygtighedsprincipper og tilgængelighedsregler for byggeri og anlæg.
Der skal sikres overkørsel til maksimum tre vejadgange fra Samsøvej - en fra vest og to fra syd, som i princippet vist på illustrationsplanen. Vejadgangene fra syd vil blive de primære adgangsveje for personale, besøgende og pårørende. Vejadgangen fra vest vil henvende sig til eksterne leverandører i forbindelse med flyttebiler, vareindlevering, renovation og den daglige drift af bygningen. Af hensyn til sikkerhed, funktionalitet og oplevelse skal vejadgange for personale, besøgende og pårørende være adskilt fra vejadgange til eksterne leverandører i forbindelse med flyttebiler, vareindlevering mm. Konflikter mellem de forskellige funktioner i indgangsarealerne skal undgås. Vejene skal fungere som brandveje, og der skal sikres et 4 m bredt brandredningsareal rundt om byggeriet og med en hensigtsmæssig afstand til byggeriet.
Alle manøvrer i forbindelse med afhentning af renovation og levering af varer skal kunne ske på egen grund, så det undgås at lastbiler bakker ud på Samsøvej.
Parkering
Parkering foregår ud til Samsøvej inden for det angivne byggefelt samt de grå felter markeret på kortbilag 2. Der skal anlægges 0,6 parkeringspladser pr. boligenhed, svarende til 45 p-pladser, hvis der etableres 75 boligenheder. Heraf skal der pr. 25. bolig etableres en handicap-parkeringsplads svarende til 3 stk. ud af områdets i alt 45 p-pladser. Disse skal placeres nær hovedindgangen. Ud mod vejen etableres beplantning, som vist på kortbilag 2. Beplantningen skal være uigennemtrængelig og have en afskærmende funktion bestående af buske i bunden (ca. 80-100cm høj) med overstandere af træer. Dette skal harmonere med beplantningen omkring SOCU Holbæks parkeringsplads.
De fælles parkeringsarealer skal anlægges således, at de er egnede for bevægelseshæmmede og kørestolsbrugere, samtidig med at belægningen tillader overfladevand at sive ned på dele af belægningen. Der skal anlægges cykel-parkeringspladser til 20 cykler. Det vil være muligt at integrere cykelparkering i selve bygningen. Stier skal udlægges i 2,2 meters bredde.
Friarealer
I det nordøstlige hjørne af lokalplanområdet fastholdes placeringen af en eksisterende sti, som forbinder to boligområder øst for området, som også forbindes med stien rundt om søen.
Søen er i dag omgivet af en del beplantning, som tyndes ud med anlæggelsen af friarealerne. Lokalplanen kræver, at der skal udformes en samlet plan for fri- og parkeringsarealet, hvor det sikres at friarealerne tilpasses de dementes forskellige behov og forhindrer, at de forlader området uden opsyn. Der skal ligeledes sikres niveaufri og handikapvenlig adgang til byggeriet og friarealerne. Søens herlighedsværdi skal fremover udnyttes bedre, og evt. indhegning af søen skal ske skjult af beplantning, så området fremstår som et grønt rekreativt område.
Der skal være ramper/nedsænkede kantsten på strækningen fra plejecentret frem til Anders Larsens Vej, hvor der er offentlig transport. Derved sikres det at pårørende, som i nogle tilfælde kan være ældre mennesker, uhindret kan komme frem til plejecentret.
De eksisterende 5 træer mod vest ved den eksisterende vejadgang er udpeget som bevaringsværdig beplantning pga. deres størrelse. Hvis de bliver beskadiget i forbindelse med anlægsfasen, skal der etableres erstatningstræer.
Illustrationsplan af lokalplanområdet - klik for større version
Lokalplankort med delområderne - klik for større version.
Detaljetegning af hvordan gårdrummet kan komme til at se ud.
Diagram over trafik- og parkeringsforhold.





