Anvendelse
Lokalplanen udlægger området til campingplads med tilhørende rekreative faciliteter.
Lokalplanen fastsætter generelle anvendelsesbestemmelser for hele lokalplanområdet. Udover de generelle bestemmelser opdeles lokalplanområdet i mindre delområder med tilhørende bestemmelser.
Lokalplanen muliggør:
- at der kan etableres op til 22 campinghytter.
- at der kan etableres op til 4 shelters.
- op til 220 campingenheder på området. Campingenheder tæller campingvogne, telte o. lign., samt campinghytter og shelters. Dette er en udvidelse med 20 campingenheder ift. tidligere lokalplan nr. 77.
- at der kan etableres tekniske anlæg inden for lokalplanområdet
- at der kan etableres rekreative faciliteter som legeplads, legeredskaber o. lign. inden for lokalplanområdet
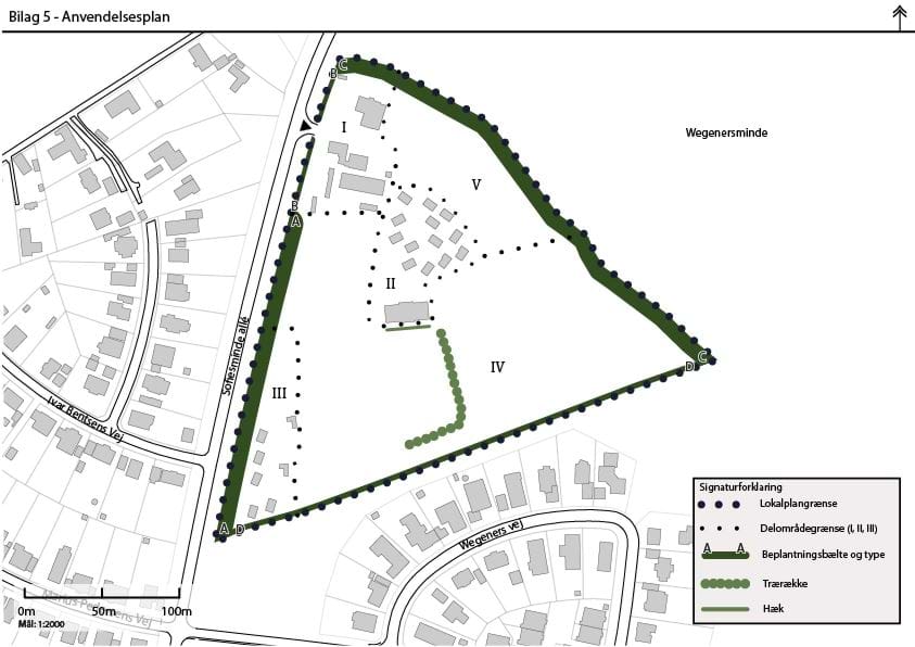
Lokalplanområdet inddeles i 5 delområder, der giver mulighed for følgende anvendelse:
I. Byggeri til reception, butik, rekreative faciliteter (f.eks. wellness- og fitnessrum), serviceformål (f.eks. bad- og toiletbygning) samt én bolig beregnet til lejrchefen.
II. Byggeri til campinghytter, rekreative faciliteter og serviceformål.
II, V. Særligt støjgenererende rekreative faciliteter (boldbaner, hoppepuder o. lign.) kan kun etableres i disse delområder.
III. Byggeri til campinghytter.
IV, V. Byggeri til shelters og mulighed for etablering af pladser til campingvogne, telte o. lign.
Planområdets inddeling i delområder kan ses på illustrationen til højre. Inddelingen i delområder er med til at sikre et hensyn til omgivelserne. F.eks. sikrer lokalplanen, at særligt støjgenererende rekreative faciliteter, som boldbaner og hoppepuder, etableres i den centrale og nordøstlige del af campingpladsen, i respektfuld afstand til nærtliggende boligområder.
Generelt muliggør lokalplanen den allerede eksisterende anvendelse i området. Der gives dog mulighed for flere campingenheder i området. Lokalplanforslaget fastsætter hertil bestemmelser, så der sikres hensyn til omgivelserne. Bestemmelserne er beskrevet nærmere i de følgende afsnit.
Delområderne i lokalplanområdet.
Byggeri og pladser til campingvogne, telte o. lign.
Lokalplanen fastsætter en maksimal bebyggelse for hvert af de 5 delområder.
I. 1500 m2
II. 1100 m2
III. 600 m2
IV. 200 m2
V. 100 m2
Som det fremgår muliggør lokalplanen hovedsageligt byggeri i delområde I og II, og i mindre grad delområde III. Lokalplanen giver kun beskedne muligheder for byggeri inden for delområde IV og V. Dette er for at understøtte den eksisterende anvendelse i området, og for at sikre et hensyn til det tilstødende boligområde mod syd.
Delområde I fungerer som indgang til campingpladsen fra Sofiesminde allé. Her er placeret reception, butik til betjening af campisterne, svømmebassin, bygning anvendt til wellness og en bolig til lejrchefen. Lokalplanen viderefører den eksisterende anvendelse i delområde I.
Delområde II og III rummer samtlige af campingpladsens campinghytter, og i delområde II er etableret en større servicebygning med bad- og toiletfaciliteter. Lokalplanen giver mulighed for, at der aktuelt kan udvides med to campinghytter i delområde II eller III.
Delområde IV og V benyttes til campingvogne, telte o. lign. samt 2 shelters. Lokalplanforslaget giver mulighed for, at der aktuelt kan udvides med 2 shelters eller 20 pladser til campingvogne, telte o. lign. i delområde IV eller V.
Lokalplanen fastsætter en maksimal bygningshøjde på 5 m, således at der sikres godt udsyn over landskabet omkring campingpladsen.
Beplantning
Lokalplanforslaget fastsætter bestemmelser for beplantningen i området.
De eksisterende beplantningsbælter, der omslutter campingpladsen, inddeles i fire typer med tilhørende bestemmelser.
Indelingen fremgår af lokalplanen anvendelsesplan, der kan ses til højre.
Beplantningsbæltet A - A løber langs campingpladsens vestlige grænse mod Sofiesminde allé, og stopper ved starten af delområde I. For at sikre en visuel afskærmning mellem vejen og campingpladsen, skal beplantningsbæltet etableres med en bredde på mindst 10 m, og i udvokset stand have en højde på mindst 5 m.
Beplantningsbæltet B - B løber langs campingpladsens indgangsparti mod Sofiesminde allé. Lokalplanen giver mulighed for, at denne strækning etableres som alm. hæk, så indgangen til campingpladsen er tydelig fra vejen.
Beplantningsbæltet C - C løber langs campingpladsens nordlige og østlige grænse mod Wegenersminde. For at sikre, at der skabes et harmonisk og uforstyrret udsyn over Wegenersminde, skal beplantningsbæltet etableres i mindst 10 m bredde, og i udvokset stand have en højde på mindst 2 m.
Beplantningsbæltet D - D løber langs campingpladsens sydlige grænse i skellet mellem campingpladsen og et boligområde. For at sikre en visuel afskærmning mellem områderne, skal beplantningsbæltet på campingpladsens grund være mindst 3 m bredt, og i udvokset stand have en højde på mindst 3 m.
Gennem dispensation fra tidligere lokalplan nr. 77, er der givet tilladelse til fældning af en mindre lund i området. Det fældede område var jf. tidligere gældende lokalplan nr. 77 udlagt som friareal. Nærværende lokalplan ændrer anvendelse for friarealet, således at der kan opstilles campingvogne telte o. lign. på området. Lokalplanen sikrer, at der etableres en trærække og en hæk før området kan tages i brug.
Hækken skal placeres syd for den store servicebygning i delområde II. For at sikre en visuel afskærmning af servicebygningen, skal hækken i udvokset stand være mindst 3 m høj.
Trærækken skal bestå af træarter, der i udvokset stand har en gennemsnits maks. højde på 3-8 m, og en trækrone der kan opnå en horisontal diameter på min. 6 m. Træerne skal placeres med en individuel afstand på maks. 5 m.
Illustration af funktionsprincip for trærækken
Trærækken skal erstatte det visuelle brud, som den fældede lund tidligere gav, og skabe en grøn 'korridor' der kan fungere som rekreativt område for campisterne. Træarter med en lav stamme og en skærmformet trækrone vil være velegnede til formålet. Blandt disse kan nævnes Japansk kirsebær (Prunus serrulata), Almindelig Bærmispel (Amelanchier lamarckii), Kirsebær-Kornel (Cornus mas), Japansk paradisæble (Malus floribunda) og Skovabild (Malus sylvestris).
Beplantningsbælter, trærække og hæk illustreret på
kortbilag 5 - Anvendelsesplan



