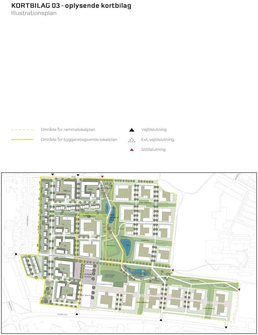
Oplysende kortbilag
Kortbilagene herunder hører til lokalplanens redegørelse og oplyser om de eksisterende forhold samt de mulige, fremtidige forhold i planområdet.
Juridisk bindende kortbilag
Kortbilagene herunder hører til lokalplanens bestemmelser og er juridisk bindende i forhold til de fremtidige forhold i planområdet.














