Lokalplanens indhold
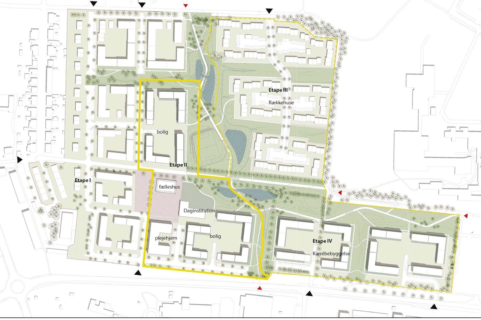
Lokalplanen er udarbejdet, da den første etape af udbygningen ved Holbæk Have er ved at være afsluttet. Den næste etape, der muliggøres igangsat med denne lokalplan, indeholder ca. 285 etageboliger, et plejehjem, et fælleshus og en daginstitution, foruden tilhørende parkering og en del af den grønne kile.
Samtidig foretages med lokalplanen en justering af rammerne i rammelokalplandelen, der omfatter det samlede område, således at rækkehusene i den resterende del af området samles i delområde 4 (etape III), hvorved boligantallet i dette delområde nedbringes fra 318 til 121 i forhold til den tidligere disposition.
Vejadgangen for delområde 4 besluttes ikke med denne lokalplan, da delområde 4 er en del af rammelokalplanområdet, og inden realisering af bebyggelse og ændring af vejadgang her kan ske, forudsættes gennemført ny lokalplanlægning, hvor der igen vil blive gennemført en offentlig høringsproces.
De allerede vedtagne bestemmelser omkring hoved dispositionen, den grønne kiles udformning, bygningernes ydre fremtræden, materialevalg m.v., er i vidt omfang videreført fra den gældende lokalplan til den nye.
De eksisterende karaktergivende træer i området skal bevares, så de bidrager til oplevelsen af et grønt område, til glæde for både beboere og besøgende i området såvel som for de kommende boliger.
Dispositionsplan med angivelse af projektlokalplanområde
Langs kanterne af området tilpasses bebyggelsen de eksisterende strukturer, så lavere rækkehusbebyggelse møder den eksisterende bebyggelseskant mod vest, og mod nordøst, mens karrébebyggelse kanter området ud mod vejen Holbæk Have, og tegner bebyggelsen indadtil mod den grønne kile. Der etableres et byrum centralt i området, hvor der placeres et nyt fælleshus, med mulighed for at skabe fælles aktiviteter. Derudover gives mulighed for opførelse af et plejehjem og en daginstitution, der ligger ud til den grønne kile.
Illustration af den samlede bebyggelse


