Lokalplanens indhold
Anvendelse
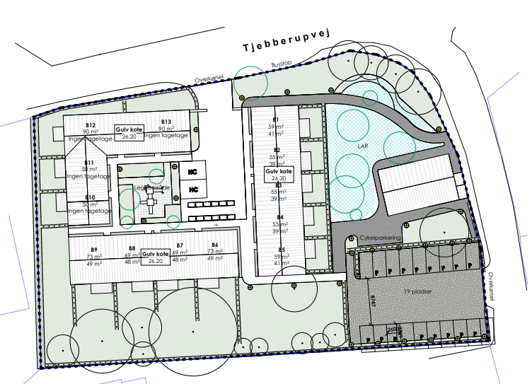
Lokalplanen giver mulighed for anvendelse til boligformål i form af 13 rækkehuse med tilhørende depotrum, fælles opholdsarealer og parkeringsfaciliteter.
Helhedstanke/identitet og sammenhæng
Ejendommen er disponeret som en gårdbebyggelse med tæt-lav-boliger, hvor alle har indgang fra gården som giver mulighed for fællesskab, idet man møder sin nabo på vej hjem fra arbejde. Depotrummene er samlet, så der er der også god mulighed for at møde sin nabo og dele værktøj mv.
Bygninger
Lokalplanen sikrer at to af de eksisterende bygninger bevares
Tolænget driftsbygning som del af ikke udflyttet gård ift. reformationen. - Bygning 2
Indrettes og udbygges til i alt fire boliger med loft til kip.
Tidl. smedje - Bygning 1
Skal anvendes til fælles depotrum og cykelparkering til de kommende beboere.
Ny bygning 3
Indrettes til fire boliger
Ny bygning 4
Indrettes til fem boliger
Kulturhistorie, bevaringsværdier og ny arkitektur
De to bevarede bygninger, den tolængede driftslænge fra den ikke udflyttede firelængede gård og om den tidligere smedje, fortæller historien om livet i Tjebberup landsby. Med de nye bygninger genopføres den firelængede gård som den tolængede driftsbygning var en del af. Projektet viderefører motiver fra den tolængede bevaringsværdige bygning med hvidkalket murværk med murværksdetaljer. De nye bygninger får røde tegltagsten, grønne bondehusvinduer og fyldningsdøre som passer ind i landsbyens arkitektur. Projektet arbejder med belægninger som hører landsbyen til: Flisebelagt sti med perlesten langs bygningerne og slotsgrus på parkeringsareal.
Nedrivning af Tjebberupvej 62 - smedens bolig
Den eksisterende bolig, der tidligere har været smedens bolig og er SAVE - registreret med en middel bevaringsværdi på 4 forudsættes nedrevet. Bygningen fremstår med én pæn facade, mens de øvrige facader har senere modificeringer som ikke er i overensstemmelse med bygningens udtryk ud mod Tjebberupvej. Bygningen fremstår med en lav loftshøjde, som gør den svært at indrette til boliger. Administrationen indstiller derfor, at lokalplanen giver mulighed for at nedrive smedjeboligen for at give plads til de i alt 20 parkeringspladser, som der stilles krav om til de 13 nye boliger.
Beplantning
Udvalgt beplantning bevares og giver karakter til friarealer. Syd for den østlige længe giver fællesområde mulighed for nyttehave.
Fælles opholdsarealer
Opholdsarealer indrettes hhv. til gårdsplads med legeområde, landsbytorv med regnvandshåndtering og sydvendt have.
Gårdsplads med legeområde
Gårdspladsen indrettes med legeområde. Midt i gårdspladsen plantes træer som skal gives vækstforhold så de med tiden kan vokse sig store og karaktergivende. Omkring legeområdet anlægges græs og der plantes enkelte frugtbuske eller træer.
Landsbytorv med LAR
Ejendommens nordøstlige hjørne er planens laveste punkt, hvor der sættes plads af til at regnvand kan håndteres. Området indrettes med opholdsarealer i form af stier.
Sydvendt have
Syd for gavlen af bygning 4 indrettes en fælles have med mulighed for nyttehaver eller en fælles sydvendt terrasse. Der gives mulighed for at bygge et fælles drivhus.
Trafik og Parkering
Parkering er samlet i det sydøstlige hjørne. Eksisterende beplantning, i form af valnøddetræ, bevares så parkeringspladsen fremstår grøn ud mod Tjebberupvej. Lokalplanen stiller krav til 1,5 parkeringsplads per bolig. Parkering samles i ejendommens sydøstlige hjørne med to handicapparkeringspladser placeret i gårdrummet.
Affald
Affaldshåndtering placeres i samlet gårdspladsen. For at sikre gode forhold for tømning af affald skal indkørslen til gårdrummet anlægges som fast belægning i fliser. Arealet til affaldshåndtering afskærmes med et plankeværk af lodret træbeklædning.
Energi og Ressourcer
Der spares energi til opførelse af depotrum, som i stedet placeres i den tidligere smedje. Området ligger i kollektivt forsyningsområde til naturgas som forventes at overgå til fjernvarme i 2030-2034. Det anbefales at energiforsyningen i mellemtiden etableres ved hjælp af varmepumper.

