Oplysende kortbilag

Kortbilagene herunder hører til lokalplanens redegørelse og oplyser om de eksisterende forhold samt de mulige, fremtidige forhold i planområdet.

Kortbilag 1

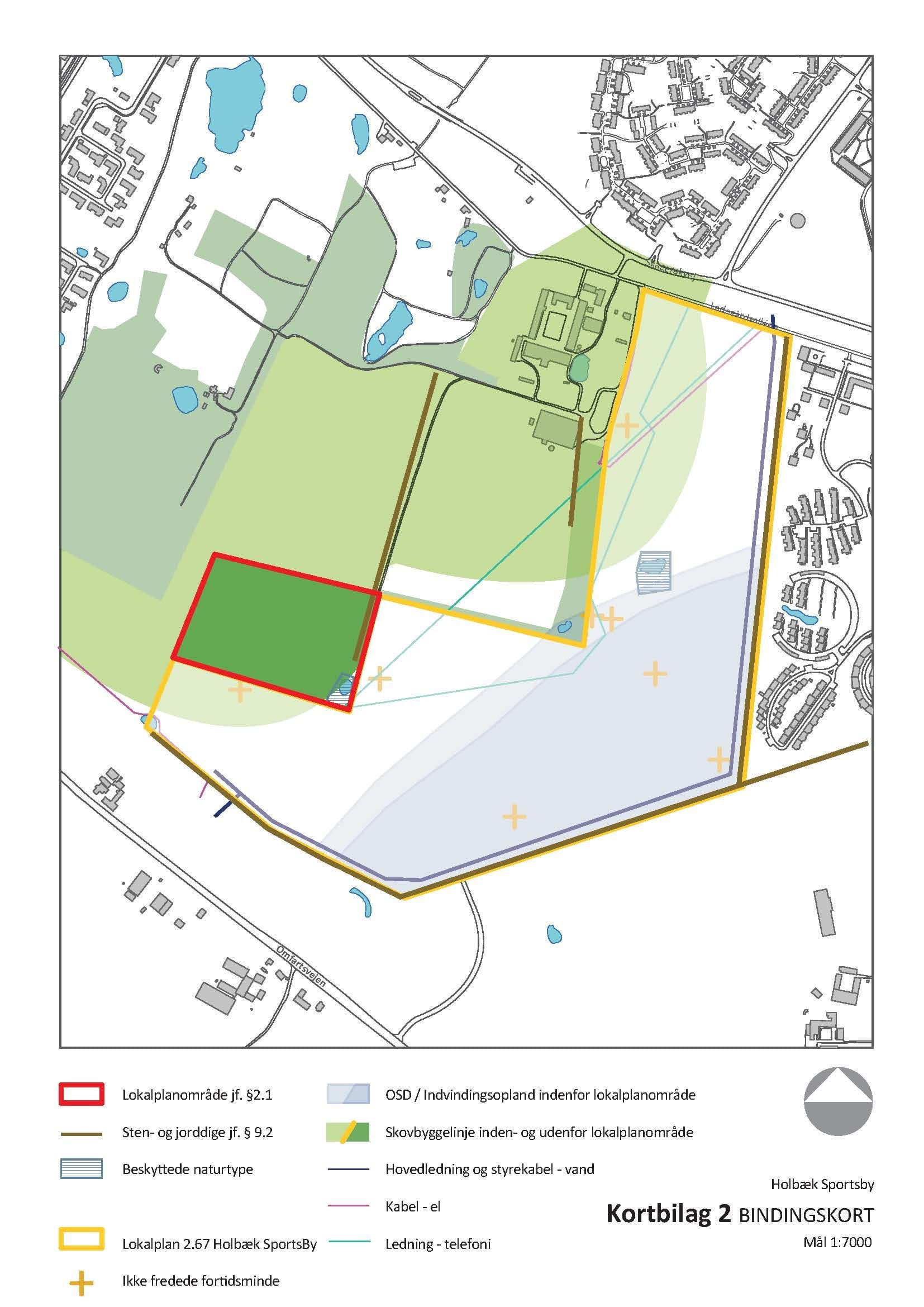
Kortbilag 2

Kortbilag 3

Juridisk bindende kortbilag

Kortbilagene herunder hører til lokalplanens bestemmelser og er juridisk bindende i forhold til de fremtidige forhold i planområdet.

Kortbilag 4

Kortbilag 5

Kortbilag 6

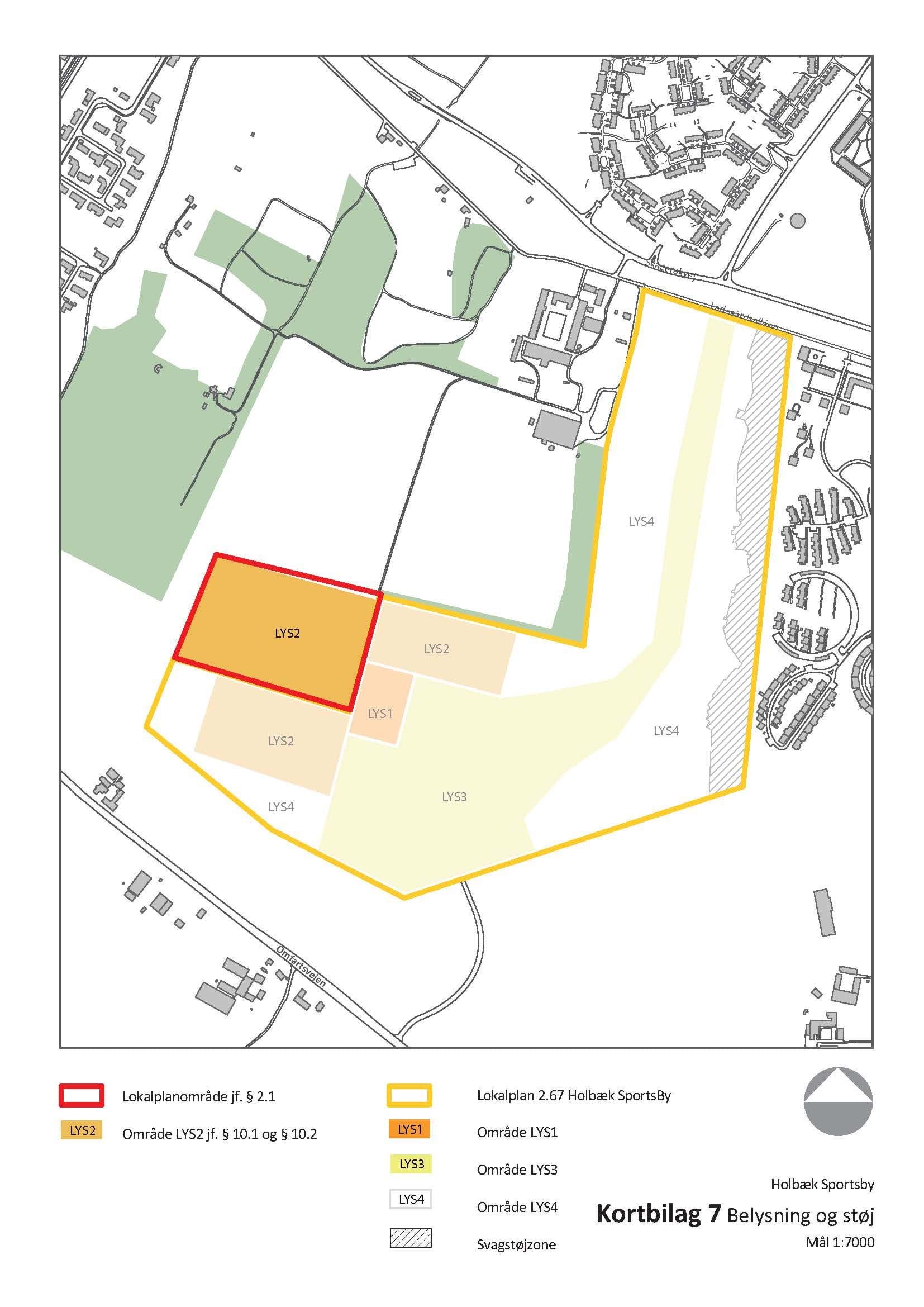
Kortbilag 7

Kortbilag 8

Kortbilag 9