Statslig og regional planlægning
Det er vurderet, at lokalplanen er i overensstemmelse med statslig og regional planlægning.
Kommuneplan 2013-2025
Området er i kommuneplan 2013-2025 for Holbæk Kommune udlagt til boligformål, lokalplanen viderefører den eksisterende anvendelse.
Ramme for Æblevang 2.B16
| Omr. nr. | 2.B16 |
| Navn | Æblevang |
| Anvendelse | Etagebebyggelse / Anden bebyggelse |
|
Maks. bebyggelses- procent |
45 |
| Maks. etageantal | 2,5 / 1 |
| Maks. bygn højde | 11 m / 8,5 m |
| Supplerende bestemmelser |
Bebyggelse langs Roskildevej skal tilpasses vejens karakter og opføres i maks 1,5. etage. Boligbebyggelse placeres fortrinsvis mod øst og anden bebyggelse fortrinsvis mod vest. |
| Nuværende zone | Byzone |
| Fremtidig zone | Byzone |
Kommuneplanens retningslinjer for vand og grundvand fastlægger retningslinjer for arealer med drikkevandsinteresser, arealer med særlige drikkevandsinteresser (OSD), indvindingsoplande og nitratfølsomme områder. Lokalplanområdet er beliggende i område med drikkevandsinteresser, det vurderes ikke at give anledning til at fastsætte særlige retningslinjer for grundvandsbeskyttelse i lokalplanen.
Kommuneplan 2013-25 fastsætter retningslinjer for støjbelastede arealer i byområder. Lokalplanen sikrer, at bebyggelse og primære opholdarealer udføres og indrettes således, at beboere og brugere afskærmes mod støj og anden forurening fra trafikanlæg og omkringliggende virksomheder, herunder forlystelser og lignende. Dette skal ske i overensstemmelse med Miljøstyrelsens vejledende regler om støj.
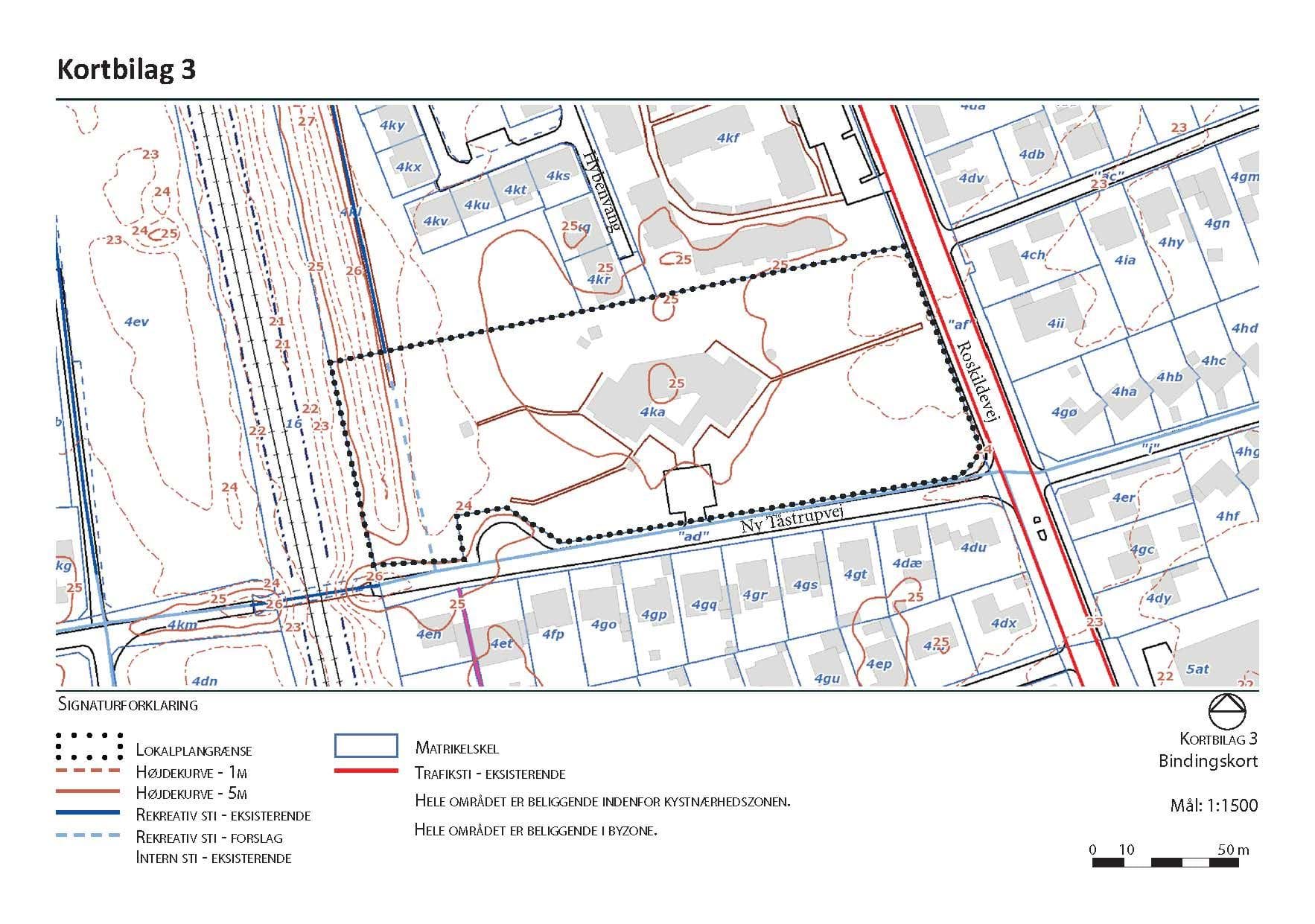
Kommuneplan 2013-25 fastsætter desuden retningslinjer for stier og grønne områder. I henhold til stiplan 2009 for Holbæk Kommune sikres det i lokalplanen, at der kan etableres en offentlig sti, østre banesti, i områdets vestlige del (vist på kortbilag 3). Stien muliggøres i lokalplanen, men selve forløbet ændres i forhold til det, der er skitseret i stiplanen (som i princippet vist på kortbialg 4).
Kortbilag 3 Bindingskort
Kortbilag 4 - Illustrationsplan
Eksisterende lokalplaner
Området har ikke tidligere været lokalplanlagt.
Kystnærhedszone
I lokalplaner for bebyggelse og anlæg i de kystnære dele af byzonen, der vil påvirke kysten visuelt, skal der i følge planlovens § 16 stk. 4 redegøres for påvirkningen.
Lokalplanområdet er beliggende indenfor kystnærhedszonen i byzone. Området er omgivet af bymæssig bebyggese og er ikke synligt fra kysten. Det vurderes derfor, at kystnærhedszonen ikke har betydning for planlægningen.
Diverse udpegninger
Der er ikke registreret fredninger, beskyttelseslinjer eller andre former for udpegninger indenfor lokalplanområdet.
Trafikforhold
Området er trafikbetjent fra Ny Tåstrupvej. Der vil i forbindelse med de nye boliger til handicappede blive etableret parkeringspladser indenfor lokalplanområdet, svarende til 1 p-plads pr. boligenhed og 1 p-plads pr. 50 m2 aktivitetscenter.
Der er i Stiplan 2009 for Holbæk Kommune planlagt en stiforbindelse fra Hybenvang til Ny Tåstrupvej som led i en samlet stiforbindelse fra Sofievej til Ny Tåstrupvej. Mulighed for at opføre stiforbindelsen fra Hybenvang til Ny Tåstrupvej sikres i lokalplanen. Lokalplanen sikrer i den forbindelse, at motorkøretøjer ikke vil have mulighed for at få adgang til stisystemet fra Ny Tåstrupvej.
På Roskildevej er der etableret cykelsti.
Den eksisterende parkeringsplads.
Offentlig service
Nærmeste busstoppested er beliggende på Roskildevej umiddelbart ud for lokalplanområdet. Der er ca. 1,8 km til Holbæk station, hvorfra der er forbindelser mod Kalundborg og Roskilde/København.
Indkøbsmuligheder er beliggende primært i Holbæk midtby og desuden På Roskildevej mod syd, på Holbæk Have/Mellemvang mod øst og på Tåstrup Møllevej mod vest.
Se Holbæk Kommunes hjemmeside for flere informationer www.holbaek.dk.



